Home » Residential » Multi-Family » Trinity Townhomes
Trinity Townhomes
Multi-Family
Trinity/30th Avenue Townhomes with Pb Elemental
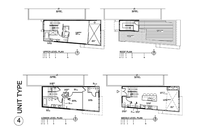
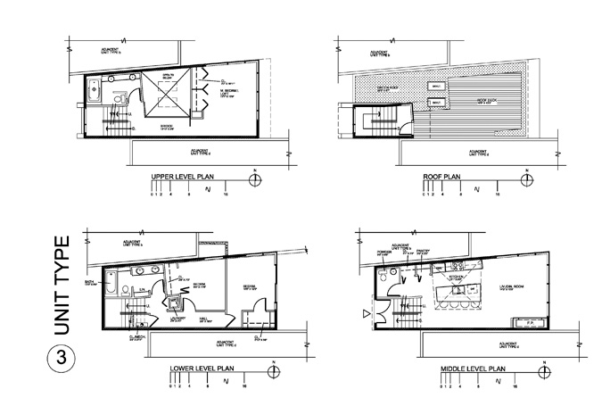
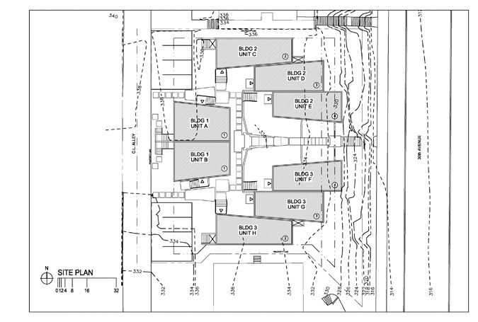
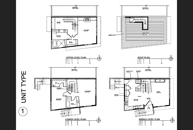
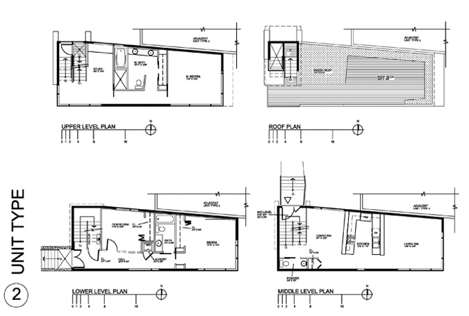
This Project includes 6-Unit Townhouses located in the Central Area neighborhood of Seattle. It consists of two blocks of triplexes set perpendicular to one another along Martin Luther King Jr. Blvd. The Site slopes steeply up from the street. One block of Units fronts the street and negotiates the slope with daylight basements giving these three Units the characteristics of Brownstone Walk-ups. The second block of Units is located behind the front block both of which get access from a centralized Entry/Auto Court.
The Entry/Auto Court is accessed via a steep driveway along the south property line and includes both covered and open parking spaces mixed with private on grade open space for the front block of Units. Each of the Units within the Triplexes is three levels high with the rear block having the added benefit of private Rooftop Decks.
The exterior material pallet is a combination of cement board siding and stained horizontal cedar both applied as rain-screens.
Design was completed in 2007.