Home » Residential » Addition & Remodel » Schell Residence
Schell Residence
Addition & Remodel Projects
Schell Residence
The transformation of a two-story mid-century Mercer Island Residence located in the First Hill Neighborhood characterizes this remodel/addition. The Owner’s, a young couple recently relocated from Colorado, are intent on a thorough upgrade of the 3,500 square foot Residence and the addition of a new two-car Garage and Mudroom to replace the existing Carport.
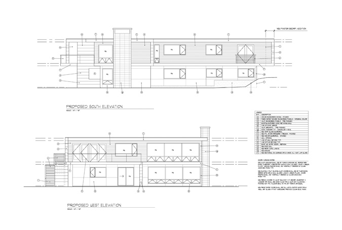
A complete update of the Exterior was intended to give the Project a contemporary expression with a material palette composed of aluminum and cement board panels as well as cedar siding all of which are applied with Rain-screen detailing. New insulated exterior doors and windows are intended to replace the existing weathered single pane units. A rebuilt deck replaces the existing dilapidated one and includes the addition of a new exterior stair to provide easier access to the rear yard.
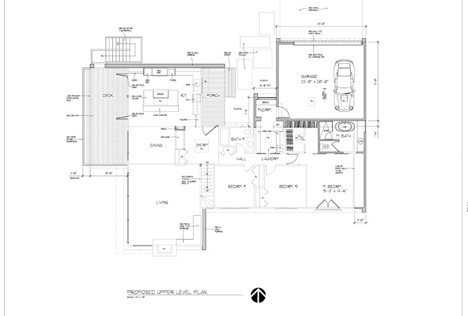
The Owners requested the reconfiguration and modernization of the Upper Level including the Existing Kitchen which is to incorporate a large multi-purpose cook-island. An updated Entry includes a new Front Door with Pivot Hardware and Art Glass. The Master Bedroom was expanded and reoriented to capture views of Lake Washington with the addition of a “Juliette” balcony. The Master Bathroom and Walk-in Closet were also enlarged and redesigned. A redesigned Laundry Room is expanded and includes a Mudroom that gives access to the new 2-Car Garage.
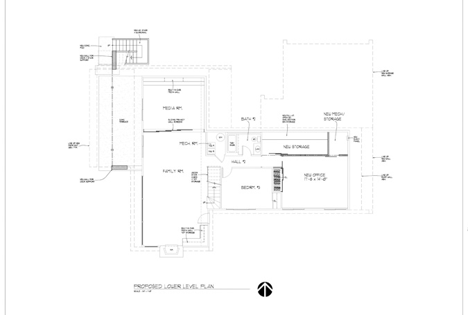
The Lower Level improvements include carving out a Media Room from the large Existing Family Room and incorporating a Home Office and Storage Area from the unimproved eastern portion on this level. Infrastructure improvements include new High Efficiency Mechanical Units, new Tank-less Water Heaters, new Electrical Service, Wiring and Fixtures and new PEX Water Piping and Fixtures.
Under Construction.